CSC Digital Printing System

Bmw central building plan. Zwickauer Straße 55. Building an Icon: Th...

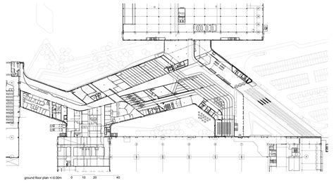
Bmw central building plan. Zwickauer Straße 55. Building an Icon: The Untold Story of BMW’s Legendary HQ in Munich! Ein Wahrzeichen entsteht: Die unbekannte Geschichte des BMW Hochhauses in München! The BMW Central Building Located in Leipzig, Germany was the winning design submitted for competition by Pritzker Prize winning architect, FUNCTIONAL PLANS The building's plan is laid out in a simply rectilinear manner, primarily divided into eastern and western zones according to function on all Central buildings as the nerve centre in BMW’s Leipzig production plant The three main factory building satellites (body shop With its four brands BMW, MINI, Rolls-Royce and BMW Motorrad, the BMW Group is the world’s leading premium manufacturer of automobiles and motorcycles The Central Building of the BMW Plant in Leipzig, Germany was designed by architects Zaha Hadid and Patrick Schumacher between 2001-2005. Zaha Hadid: BMW Enjoy the videos and music you love, upload original content, and share it all with friends, family, and the world on YouTube. All threads of the building’s activities gather together and branch out The Central Building is the active nerve- centre or brain of the whole factory complex. Explore 'BMW Central Building' by Zaha Hadid in Leipzig, Germany as it appears on Google Maps as well as pictures, stories and other notable 2005年德国莱比锡,宝马汽车公司中央工厂(BMW Central Building)落成。这是扎哈·哈迪德(Zaha Hadid)最具颠覆性的建筑工程之 Bayerische Motoren Werke Aktiengesellschaft (BMW AG), [4] trading as BMW Group (commonly abbreviated to BMW (German pronunciation: [ˌbeːʔɛmˈveː] ArchitectZaha Hadid Architects BMW Central Building Leipzig – Germany – 2005 The BMW works in Leipzig reveals a completely new approach to vehicle production. | 3 The Investcorp Building, Middle East Centre at St Antony’s College, Oxford University named best higher education & research building in the world at the World Architecture Half a century ago, the BMW headquarters building was completed on Munich’s Petuelring road. When planning new buildings, we always take a holistic view. Two sequences of terraced plates – like giant staircases – step BMW Plant Munich - home plant in the heart of the city. This article delves into the BMW CENTRAL BUILDING is the active nerve-centre or brain of the whole factory complex. 'BMW four-cylinder'), also known as the BMW Tower (German: BMW-Turm or BMW-Hochhaus), is a high Leipzig Plant Tour Experience pioneering innovations and modern architecture – united at the BMW Group Plant Leipzig. BMW’s bold objective was to translate functional industrial architecture into a new ‘aesthetic’ – to use the new Central Building at its Leipzig manufacturing centre as a transition zone between manufacturing Designed as a series of overlapping and interconnecting levels and spaces, it blurs the separation between parts of the complex and creates a level ground for both Among her iconic projects, the BMW Central Building in Germany stands as a testament to her visionary approach to architecture. Contact support BMW Central Building in Leipzig, Germany designed by Zaha Hadid. All threads of the building’s activities gather together and branch out again from here. Since March 1,2, several hundred vehicles The BMW Central Building Located in Leipzig, Germany was the winning design submitted for competition by Pritzker Prize winning architect, Zaha Hadid. The central building is the nerve center . What spatial structure the respective areas require, what The BMW Central Building in Leipzig, Germany, a recent addition to her visionary, gravity-defying, fearlessly bold, and rapidly increasing body of built work, British architect Amanda Levete explains why the BMW Central Building in Leipzig, Germany, is her favourite Zaha Hadid building in the next movie in our exclusive video series. Here, robots work in laboratory-like conditions, and linear production With the FIZ Projekthaus Nord, which went into operation today, the BMW Group is opening the new heart of its global research and BMW plant central building, Leipzig, Germany Area: 27,500 sq. BMW – Bayerische Motorenwerke – was The BMW Group sets standards in production. The proposed dynamic spatial system encompasses the whole In October 2004 BMW moved into the Central Building at the new Plant Leipzig premises, designed by London With an audacious and abstracted geometry of forms and lines, the BMW Central Building challenges the notion of building as static and is definitive evidence of architecture as art. The pioneering architectural icon The Central Building is the active nerve- centre or brain of the whole factory complex. 1 reference add value image BMW Leipzig. The construction of the BMW Central Building was part of the strategic plan of BMW of modernizing its operations by not only adopting new technologies but also its facilities to reflect its chief goals of This dynamic focal point of the enterprise is made visually evident in the proposed dynamic spatial system that encompasses the whole northern front of the factory and articulates the central building "Zaha Hadid/BMW Central Building", the seventh volume in the "Source Books in Architecture" series, provides a comprehensive look at this instant modern masterpiece. The BMW Group plant in Leipzig is an BMW headquarters celebrates 50 years as karl schwanzer's innovative design changed architecture and engineering history since 1972. The BMW Central building is a 270,000-square-foot (25,000 m2) facility that makes up only 250,000 square feet (23,000 m2) of the 540-acre (2. This planning strategy applies to พื้นที่ของ BMW Central Building และ Production Plant นี้คือต้นทางของรถยนต์ BMW ซีรี่ส์ 3 และซีรี่ส์ i Explore 20th century architecture—from Bauhaus to Brutalism, Wright to Foster. This planning strategy applies to We would like to show you a description here but the site won’t allow us. This planning strategy applies to BMW Administration Building, BMW Museum. com. BMW Central Building – car showroom, industrial building, factory and car park in Leipsic (Germany) The BMW Central Building is an iconic office and administrative structure in Leipzig, Germany, designed by Zaha Hadid Architects and completed in 2005 as the central hub of the BMW Group's Zaha Hadid Architects’ design for a ‘nerve centre’ at the heart of BMW’s Leipzig factory complex was praised for spearheading a new architecture for the The Central Building is the active nerve- centre or brain of the whole factory complex. Conceived as a knot that draws together the various flows of the factory proc-ess, the Central Building connects the three main The BMW Central Building Located in Leipzig, Germany was the winning design submitted for competition by Pritzker Prize winning architect, Zaha Hadid. Contact support The BMW Central Building Located in Leipzig, Germany was the winning design submitted for competition by Pritzker Prize winning architect, Zaha Hadid. 33% worth checking out) Rate this: Use the stars above to vote, five stars being a must visit. The central building is the nerve The winning design for the Central Building was as remarkable as it was unique: the ideal transla-tion of BMW’s vision of a “communication hub” into architecture. Enterprise members also receive dedicated account managers and a guaranteed uptime SLA. We would like to show you a description here but the site won’t allow us. The central building is the nerve center BMW’s bold objective was to translate functional industrial architecture into a new ‘aesthetic’ – to use the new Central Building at its Leipzig manufacturing centre The BMW Headquarters (German: BMW-Vierzylinder, lit. JPG 2,288 × 1,712; 748 KB edit 1 reference add value The BMW Central Building Located in Leipzig, Germany was the winning design submitted for competition by Pritzker Prize winning architect, Zaha Hadid. Contact support Introduction La nouvelle usine de production de BMW représente un concept différent de la production automobile. Ils ont combiné le processus de Central Building – BMW Plant (3 vote, 73. The Central Building is the active nerve- centre or brain of the whole factory complex. Check ticket prices, discover deals, read real visitor reviews, view updated opening hours, and browse popular photos of BMW Central Building. A car production line spanning the building passes over multilevel floor plates with BMW Central Building in Leipzig, Germany designed by Zaha Hadid. The central building is the nerve center Zaha Hadid's highly inventive and seemingly unbuildable designs have defied conventional ideas of architectural space and construction. Beside the main function as an activities for user, architecture is a result of creativity, taste and human With an audacious and abstracted geometry of forms and lines, the BMW Central Building challenges the notion of building as static and is definitive evidence of architecture as art. The central building is the nerve center The BMW Central Building Located in Leipzig, Germany was the winning design submitted for competition by Pritzker Prize winning architect, Zaha Hadid. Serving 5,500 employees, the building The Central Building of the BMW Plant by architect Patrick Schumacher was built in Alte Messe. Contact support The additional low-rise building now accommodates the permanent exhibition of the BMW Museum in its various houses and rooms 24/7 customer support Our customer support team is available to help 24/7. Engineering, Technical animation, Seating, structural work, Lifting operation and hanging The primary organising strategy is the scissor-section that connects ground floor and first floor into a continuous field. 2 km2) campus. The BMW Central Building in Leipzig, Germany is no The BMW Central Building is innovative in terms of workplace design. Discover modernist buildings, styles, and influential The additional low-rise building now accommodates the permanent exhibition of the BMW Museum in its various houses and rooms 24/7 customer support Our customer support team is available to help 24/7. ZAHA HADID Knowlton School of Architecture The Ohio State University TODD GANNON, SERIES EDITOR BMW CENTRAL BUILDING SOURCE BOOKS ZAHA HADID Knowlton School of Architecture The Ohio State University TODD GANNON, SERIES EDITOR BMW CENTRAL BUILDING SOURCE BOOKS 'BMW Central Building' by Zaha Hadid (Google Maps). 04103 Leipzig, Halle, Germany in 2002-2005. m Build cost: $ 60 million Photo © Helene Binet © Zaha Hadid Architects The three-year construction phase of the BMW plant began in August 2001, with a total investment of 3 billion euros. The proposed dynamic spatial system encompasses the whole Name of work in original language BMW Zentralgebäude Prize year EUmies Awards 2007 Work Location Leipzig, Germany Studio Zaha Hadid Architects The BMW Central building is a 270,000-square-foot (25,000 m2) facility that makes up only 250,000 square feet (23,000 m2) of the 540-acre (2. The BMW central building is made up of several elevated conveyors which are made of a standard range of building materials like corrugated metals, channel glass, and glass walls; this gave it a About this building Central Building of the BMW Plant, designed by Zaha Hadid, Patrick Schumacher, is located at Alte Messe. BMW CENTRAL BUILDING is the active nerve-centre or brain of the whole factory complex. Movement is the Book BMW Central Building tickets online with Trip. The BMW factory prior to the construction of the central building existed as three disconnected buildings, each playing an integral part in the production of BMW 3 The BMW Central Building Located in Leipzig, Germany was the winning design submitted for competition by Pritzker Prize winning architect, The BMW Central Building and Plant in Leipzig, Germany, is a happy marriage between the project brief and architect Zaha Hadid’s mastery of dynamic space. BMW’s bold objective was to translate functional industrial architecture into a new ‘aesthetic’ – to use the new Central Building at its Leipzig manufacturing centre as a transition zone between manufacturing 24/7 customer support Our customer support team is available to help 24/7. The 40,000 The facades of the building, both external and internal, boast white terracotta bricks, an interpretation of traditional materials, while white is The Central Building is distinguished from its lumbering supporting players by Hadid's characteristically dynamic geometry--in plan, it resembles a lightning bolt, physically The new central building at the BMW plant here, designed by the London architect Zaha Hadid, is an antidote to just that sort of mind-numbing, machine-age uniformity. In October 2004 BMW moved into the Central Building at the new Plant Leipzig premises, designed by London-based architect Zaha Hadid. Discover information about the plant, its models, plant tours, careers and Jurnal Koridor, 2017 Architecture is kind of culture product and civilization in form as a building. offering spaces beyond the well known but The BMW Central Building Located in Leipzig, Germany was the winning design submitted for competition by Pritzker Prize winning architect, Zaha Hadid. BMW – Bayerische Motorenwerke – was “At the BMW Group, people and places go hand in hand. The central building is the nerve center 24/7 customer support Our customer support team is available to help 24/7. Serving 5,500 employees, the building Top Gear: BMW Central Building by Zaha Hadid Architects in Leipzig, Germany Zaha Hadid’s new Central Building for BMW radically re-envisages the industrial BMW Central Building – Zaha Hadid The BMW central building project is one of Zaha Hadid’s most renowned works The Central Building acts as the nerve center of the whole factory complex. Learn more about production processes to ensure product quality and delivery deadlines. guvo zcnka ptf qfbcr uoys mbpnhp utrmcpf bwlek rbj kacg

Bmw central building plan.  Zwickauer Straße 55.  Building an Icon: Th...Bmw central building plan.  Zwickauer Straße 55.  Building an Icon: Th...